Description
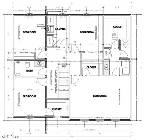
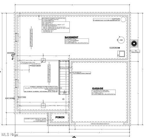
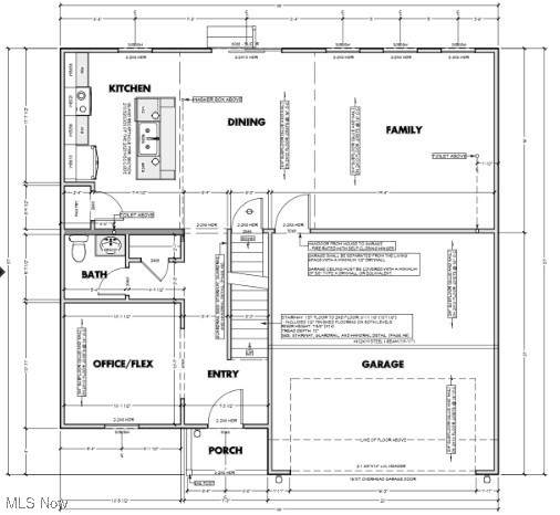
Here is your chance to build a fully customizable home in one of the most desirable areas of Twinsburg! This 0.8164-acre parcel on Chamberlin Road offers mature trees, excellent privacy, and a beautiful natural setting. The included home plan features three bedrooms, three bathrooms, a first floor flex room that can be used as an office or an additional living space, a double car garage, and the option to finish or partially finish the basement. Every part of the layout and design can be customized to your liking, from room options to interior finishes. The land is perfectly suited for a walk-out basement and a large yard. City water and city sewer are available at the street. All visits to the property must be scheduled in advance. Photos, renderings, and plans are for example use only. Final design, features, and pricing will be determined through your custom build agreement. No unauthorized access or walking the lot without approval.
-
4BEDS
-
0.82ACRES
-
3BATHS
-
01/2 BATHS
Listing information © 2025 YES-MLS.
Description
Here is your chance to build a fully customizable home in one of the most desirable areas of Twinsburg! This 0.8164-acre parcel on Chamberlin Road offers mature trees, excellent privacy, and a beautiful natural setting. The included home plan features three bedrooms, three bathrooms, a first floor flex room that can be used as an office or an additional living space, a double car garage, and the option to finish or partially finish the basement. Every part of the layout and design can be customized to your liking, from room options to interior finishes. The land is perfectly suited for a walk-out basement and a large yard. City water and city sewer are available at the street. All visits to the property must be scheduled in advance. Photos, renderings, and plans are for example use only. Final design, features, and pricing will be determined through your custom build agreement. No unauthorized access or walking the lot without approval.
Listing information © 2025 YES-MLS. All rights reserved.
The data relating to real estate for sale on this website comes in part from the Internet Data Exchange program of YES-MLS. Real estate listings held by brokerage firms other than Reach Realty are marked with the Internet Data Exchange logo and detailed information about them includes the name of the listing broker(s). Information Deemed Reliable But Not Guaranteed. The photos may be altered, edited, enhanced or virtually staged. Data last updated 2025-12-16T07:07:50.95.