Description
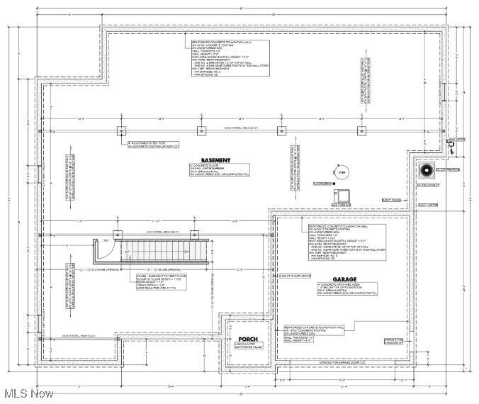
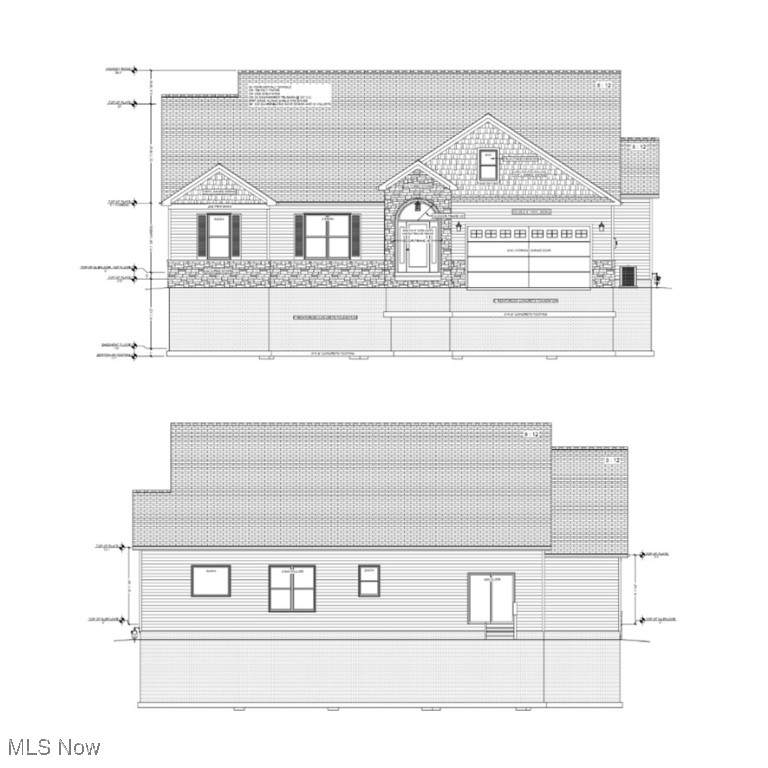
Here is your chance to build a fully customizable ranch-style home on a beautiful 0.9235-acre parcel in one of the most desirable areas of Twinsburg! The included plan offers easy one-floor living with four bedrooms, two and a half bathrooms, nine foot ceilings, and a two car garage in a ranch style home. The basement is designed for a walk-out layout and can be finished or partially finished to fit your needs. Every detail of the home can be customized, from layout adjustments to interior finishes. City water and city sewer are available at the street. All visits to the property must be scheduled in advance. Photos, renderings, and plans are for example use only. Final design, features, and pricing will be determined through your custom build agreement. No unauthorized access or walking the lot without approval.
-
4BEDS
-
0.92ACRES
-
2BATHS
-
11/2 BATHS
Listing information © 2025 YES-MLS.
Description
Here is your chance to build a fully customizable ranch-style home on a beautiful 0.9235-acre parcel in one of the most desirable areas of Twinsburg! The included plan offers easy one-floor living with four bedrooms, two and a half bathrooms, nine foot ceilings, and a two car garage in a ranch style home. The basement is designed for a walk-out layout and can be finished or partially finished to fit your needs. Every detail of the home can be customized, from layout adjustments to interior finishes. City water and city sewer are available at the street. All visits to the property must be scheduled in advance. Photos, renderings, and plans are for example use only. Final design, features, and pricing will be determined through your custom build agreement. No unauthorized access or walking the lot without approval.
Listing information © 2025 YES-MLS. All rights reserved.
The data relating to real estate for sale on this website comes in part from the Internet Data Exchange program of YES-MLS. Real estate listings held by brokerage firms other than Reach Realty are marked with the Internet Data Exchange logo and detailed information about them includes the name of the listing broker(s). Information Deemed Reliable But Not Guaranteed. The photos may be altered, edited, enhanced or virtually staged. Data last updated 2025-12-06T10:07:49.003.